Aperçu
Type
appartements
Contrat
Projet vendu
Lieux
Le Mouret
Surface
cf descr.
Salles de bains
-
Pièces
cf descr.
Description
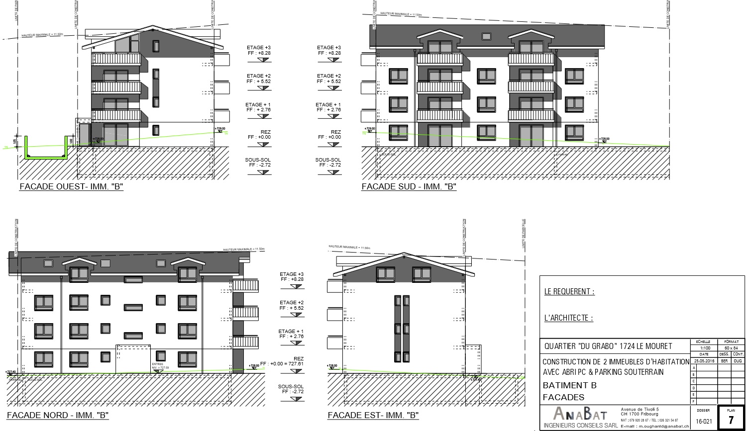
Bâtiment A:
– 4x appartements 3.5 pièces = 94.7m2 + 10.5m2 terrasse;
– 4x appartements 4.5 pièces = 114.4m2 + 10.5m2 terrasse;
Bâtiment B:
– 4x appartements 2.5 pièces = 58.5m2 + 11.2m2 terrasse;
– 4x appartements 2.5 pièces (milieu) = 47.3m2 + 10.5m2 terrasse;
– 4x appartements 3.5 pièces = 94.7m2 + 10.5m2 terrasse;
Places de parc:
20 places souterrain
2 places pour handicapés
4 places visiteurs
Vidéo
Équipements
-
Etablissements publics
15 min, Fribourg Centre ville
Plan lieux














